
タイプ |
101号室 |
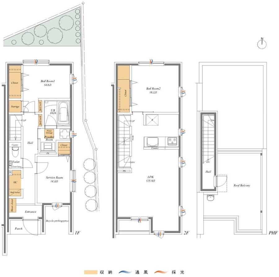
間取り |
2LDK+S |
---|---|---|---|
専有面積 |
92.38 ㎡ |
バルコニー面積 |
2.07 ㎡ |
所在地 |
東京都杉並区永福3丁目234番18(地名地番) |
||
交通 |
京王井の頭線「西永福」駅 徒歩3分 |
||
備考 |
1F:43.65㎡、2F:43.65㎡、PHF:5.08㎡ |