

| タイプ |
S TYPE |
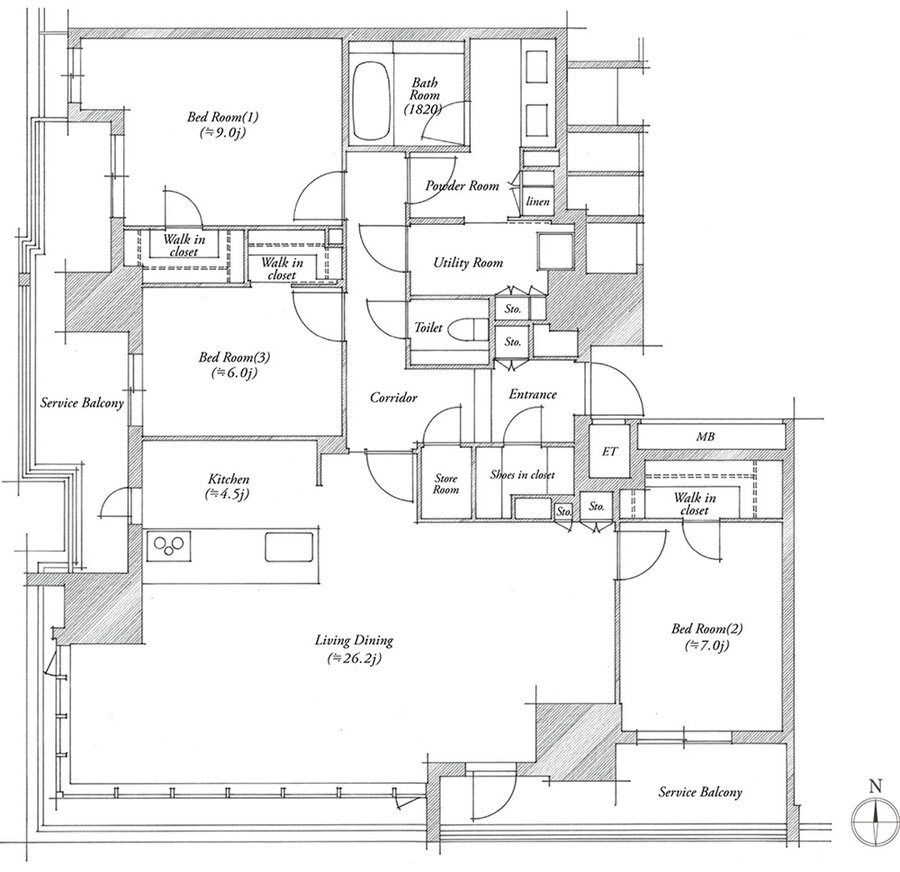
間取り |
3LDK+N+3WIC+SIC |
|---|---|---|---|
| 専有面積 |
125.56 ㎡ |
バルコニー面積 |
- |
| 所在地 |
大阪府大阪市中央区平野町2丁目12番1の1の一部 |
||
| 交通 |
地下鉄堺筋線「北浜」駅 徒歩4分 |
||
| 備考 |
サービスバルコニー面積:20.54㎡ |
||