

| タイプ |
Ht type |
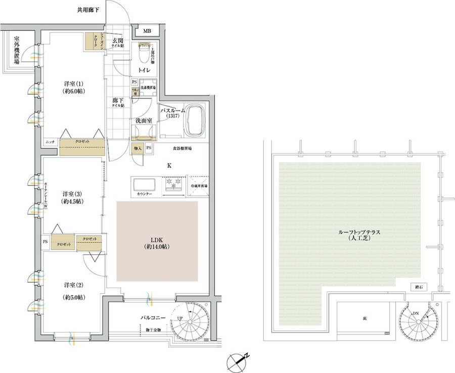
間取り |
3LDK+SIC |
|---|---|---|---|
| 専有面積 |
63.66 ㎡ |
バルコニー面積 |
6.26 ㎡ |
| 所在地 |
東京都世田谷区玉堤2丁目2694-1、2694-5、2694-34(地番) |
||
| 交通 |
東急大井町線「尾山台」駅 徒歩15分 |
||
| 備考 |
ルーフトップテラス面積:35.04㎡ |
||