

| タイプ |
Kt type |
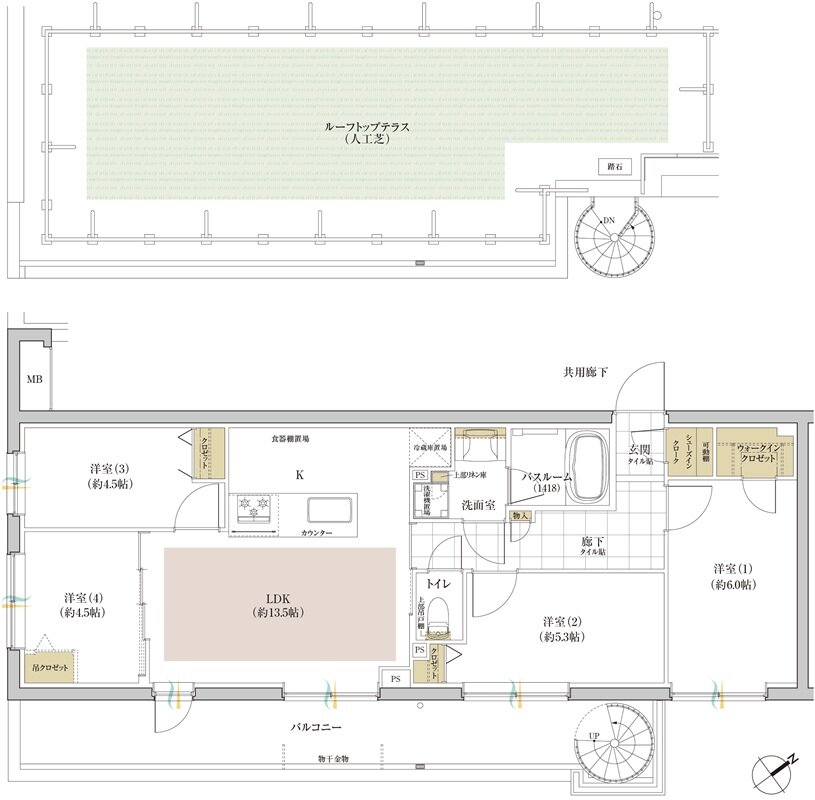
間取り |
4LDK+SIC+2WIC |
|---|---|---|---|
| 専有面積 |
72.87 ㎡ |
バルコニー面積 |
18.07 ㎡ |
| 所在地 |
東京都世田谷区玉堤2丁目2694-1、2694-5、2694-34(地番) |
||
| 交通 |
東急大井町線「尾山台」駅 徒歩15分 |
||
| 備考 |
ルーフトップテラス面積:42.60㎡ |
||