
タイプ |
J type(セレクトプラン2) |
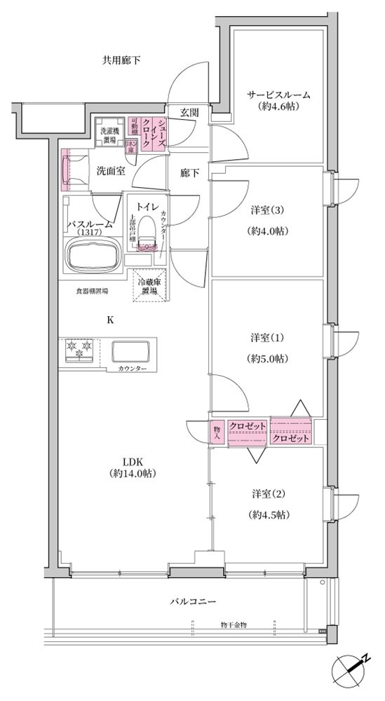
間取り |
3LDK+SIC+WIC |
---|---|---|---|
専有面積 |
65.38 ㎡ |
バルコニー面積 |
7.97 ㎡ |
所在地 |
東京都世田谷区玉堤2丁目2694-1、2694-5、2694-34(地番) |
||
交通 |
東急大井町線「尾山台」駅 徒歩15分 |
||
備考 |
室外機置場面積:0.84㎡ |