アットホーム 新築マンション

印刷する

このウィンドウを閉じる

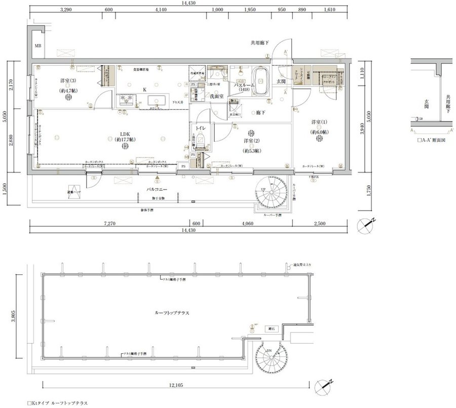
シンビエンス世田谷尾山台 Kt type(セレクトプラン)

シンビエンス世田谷尾山台 間取り Kt type(セレクトプラン)
タイプ

Kt type(セレクトプラン)

間取り

3LDK+SIC+WIC

専有面積

72.87 ㎡

バルコニー面積

18.07 ㎡

所在地

東京都世田谷区玉堤2丁目2694-1、2694-5、2694-34(地番)

交通

東急大井町線「尾山台」駅 徒歩15分
東急大井町線「等々力」駅 徒歩15分
東急田園都市線「二子玉川」駅 バス9分「玉堤小学校」 停歩5分(東急バス) 他

備考

ルーフトップテラス面積:42.60㎡

  • 玄関からリビングが見えない間取り
  • ウォークインクローゼット
  • シューズインクローゼット
  • 南東向き
  • フラットフロア

印刷する

このウィンドウを閉じる

アットホーム Copyright(c) At Home Co.,Ltd. このサイトに掲載している情報の無断転載を禁止します。著作権はアットホーム(株)またはその情報提供者に帰属します。