

| タイプ |
Er type |
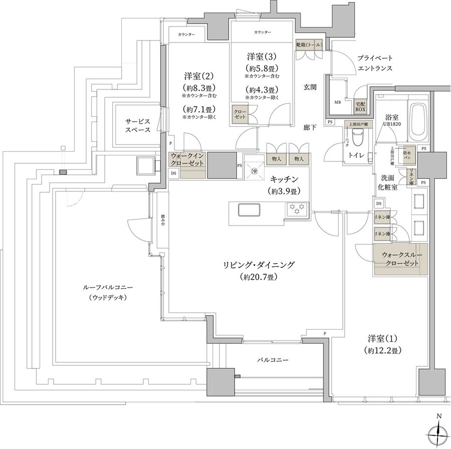
間取り |
3LDK+WTC+WIC |
|---|---|---|---|
| 専有面積 |
119.91 ㎡ |
バルコニー面積 |
8.80 ㎡ |
| 所在地 |
東京都目黒区自由が丘2丁目324番1(地番) |
||
| 交通 |
東急東横線「自由が丘」駅 徒歩10分 |
||
| 備考 |
宅配BOX面積:0.47㎡※柱部分を含む |
||