
タイプ |
Cg type |
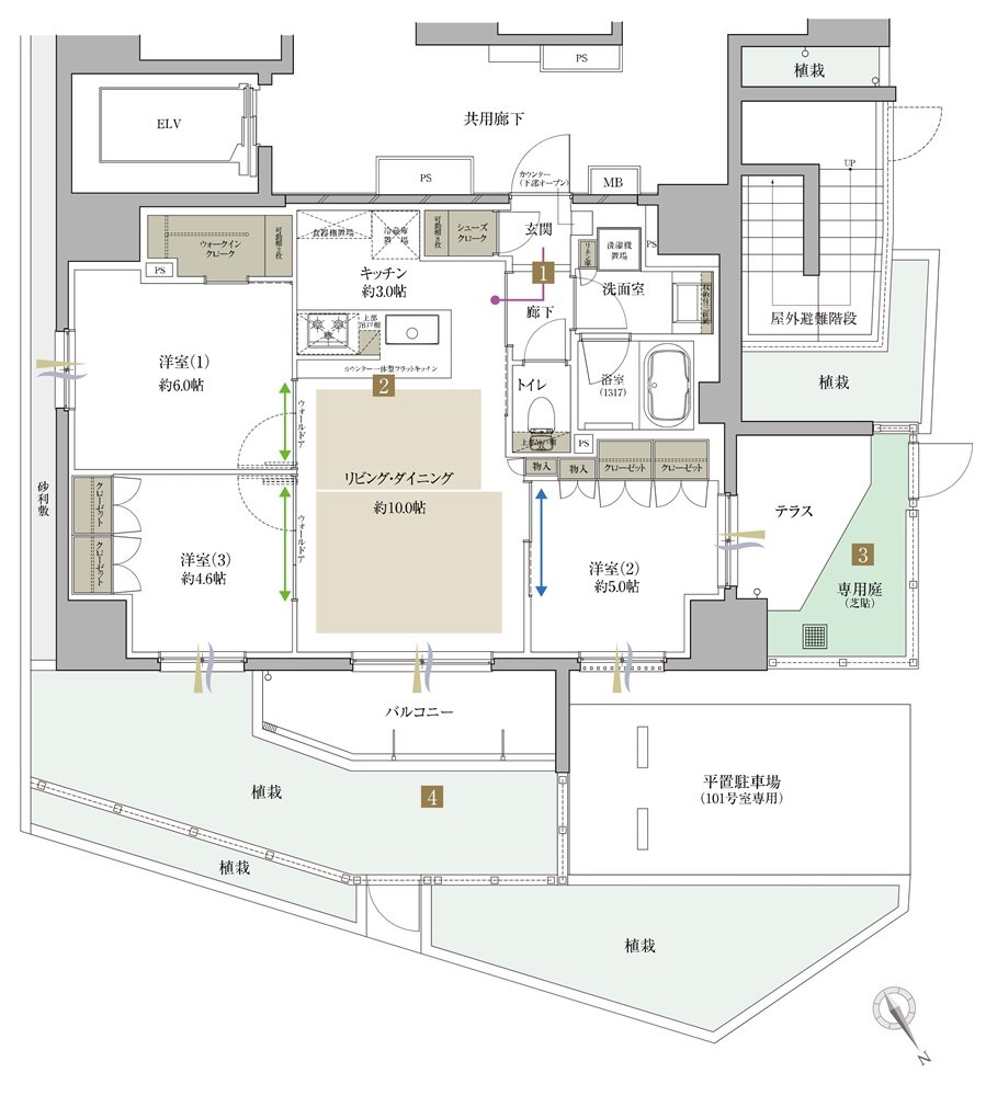
間取り |
3LDK+WIC+SC |
---|---|---|---|
専有面積 |
66.3 ㎡ |
バルコニー面積 |
10.68 ㎡ |
所在地 |
東京都江戸川区中葛西5丁目37番1 |
||
交通 |
東京メトロ東西線「葛西」駅 徒歩4分 |
||
備考 |
テラス面積:4.28㎡ |