

| タイプ |
Fg type PREMIUM PLAN |
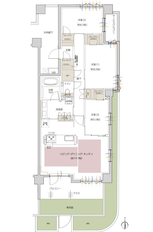
間取り |
3LDK+N+3WIC+SIC |
|---|---|---|---|
| 専有面積 |
92.64 ㎡ |
バルコニー面積 |
- |
| 所在地 |
大阪府枚方市岡南町159番1 |
||
| 交通 |
京阪本線「枚方市」駅 徒歩4分 |
||
| 備考 |
テラス面積:10.41㎡ |
||