

| タイプ |
N TYPE(South Court) |
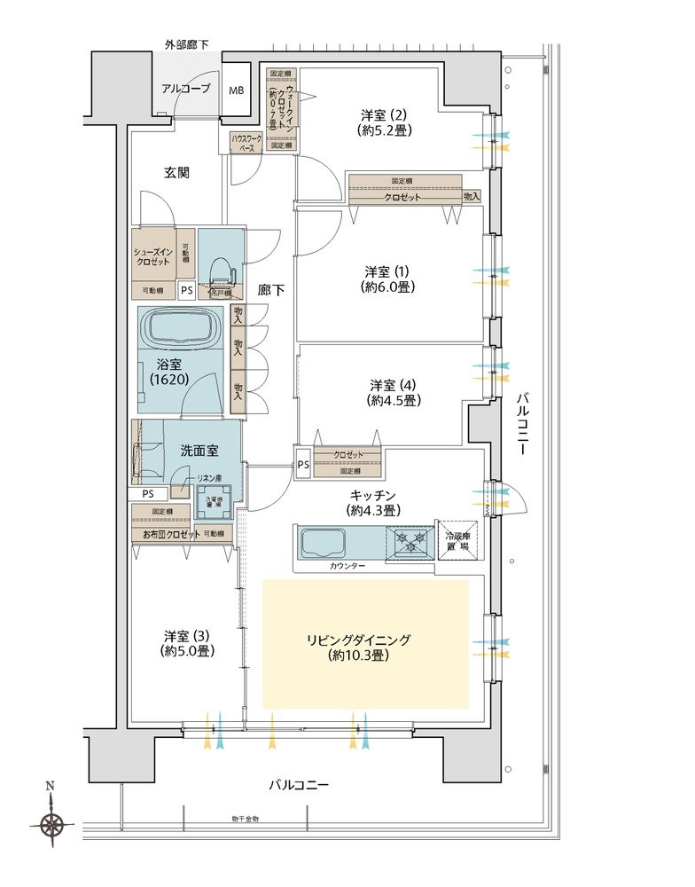
間取り |
4LDK+WIC+SIC |
|---|---|---|---|
| 専有面積 |
85.55 ㎡ |
バルコニー面積 |
29.3 ㎡ |
| 所在地 |
大阪府堺市中区深井水池町3211番5(地番) |
||
| 交通 |
南海泉北線「深井」駅 徒歩3分 |
||
| 備考 |
アルコーブ面積:2.2㎡ |
||