

| タイプ |
Iタイプ |
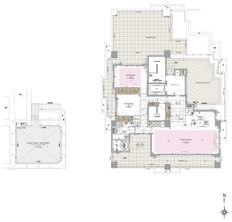
間取り |
2LDK+WIC |
|---|---|---|---|
| 専有面積 |
149.40 ㎡ |
バルコニー面積 |
46.82 ㎡ |
| 所在地 |
福岡県福岡市南区大橋4丁目1118番1、1118番3、1119番6 |
||
| 交通 |
西鉄天神大牟田線「大橋」駅 徒歩8分約610m(北口) |
||
| 備考 |
ルーフバルコニー面積:99.56㎡ |
||