

| タイプ |
I1 type |
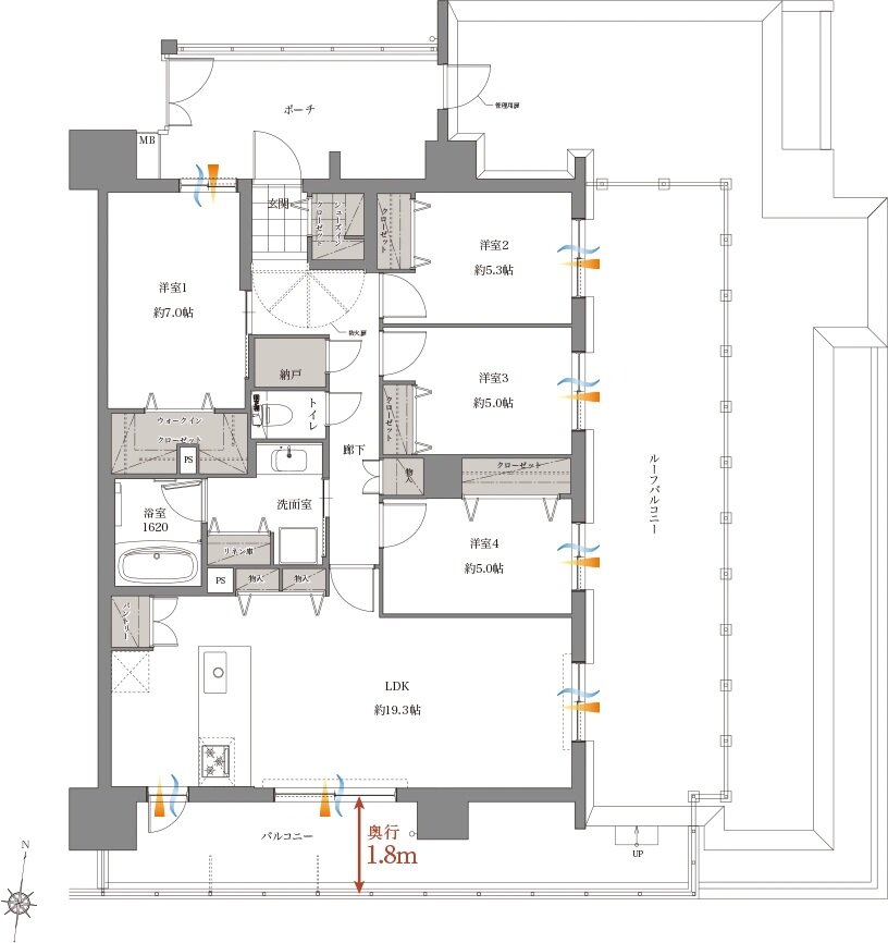
間取り |
4LDK(13F) |
|---|---|---|---|
| 専有面積 |
100.44 ㎡ |
バルコニー面積 |
18.76 ㎡ |
| 所在地 |
熊本県熊本市南区田井島1丁目1番7 |
||
| 交通 |
バス利用:バス停「熊本中央病院」 停歩5分(熊本バス) |
||
| 備考 |
ルーフバルコニー面積:31.59㎡ |
||