

| タイプ |
Cタイプ(メニュープラン1) |
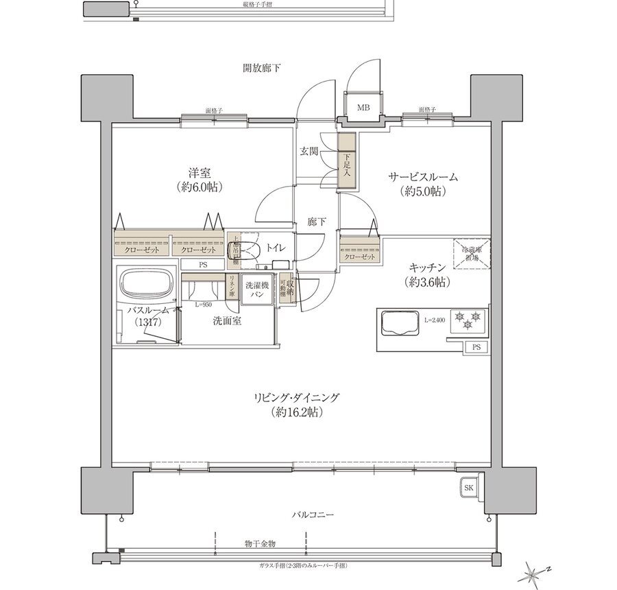
間取り |
1LDK+S |
|---|---|---|---|
| 専有面積 |
64.6 ㎡ |
バルコニー面積 |
16.15 ㎡ |
| 所在地 |
広島県広島市西区上天満町3番1(地番) |
||
| 交通 |
バス利用:バス停「上天満町」 徒歩2分(広島電鉄バス・ボンバス) |
||
| 備考 |
MB面積:0.56㎡ |
||