

| タイプ |
Lr type |
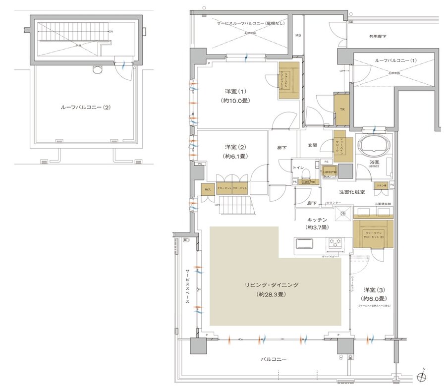
間取り |
3LDK+2WIC+SIC |
|---|---|---|---|
| 専有面積 |
125.94 ㎡ |
バルコニー面積 |
21.20 ㎡ |
| 所在地 |
神奈川県横浜市青葉区美しが丘5丁目19-1(地番) |
||
| 交通 |
東急田園都市線「たまプラーザ」駅 徒歩11分 |
||
| 備考 |
※専有面積に専有トランクルーム面積:1.28㎡含む |
||