
タイプ |
C type |
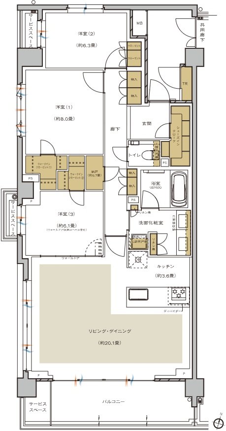
間取り |
3LDK+N+2WIC+SIC |
---|---|---|---|
専有面積 |
105.72 ㎡ |
バルコニー面積 |
12.20 ㎡ |
所在地 |
神奈川県横浜市青葉区美しが丘5丁目19-1(地番) |
||
交通 |
東急田園都市線「たまプラーザ」駅 徒歩11分 |
||
備考 |
※専有面積に専有トランクルーム面積:0.86㎡含む |