
タイプ |
R1r type |
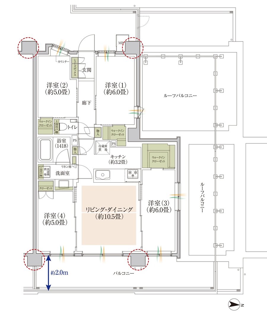
間取り |
4LDK+3WIC |
---|---|---|---|
専有面積 |
78.68 ㎡ |
バルコニー面積 |
20.10 ㎡ |
所在地 |
東京都西東京市南町6丁目1387番5(地名地番) |
||
交通 |
西武新宿線「田無」駅 徒歩11分 |
||
備考 |
ルーフバルコニー面積/29.92㎡ |