

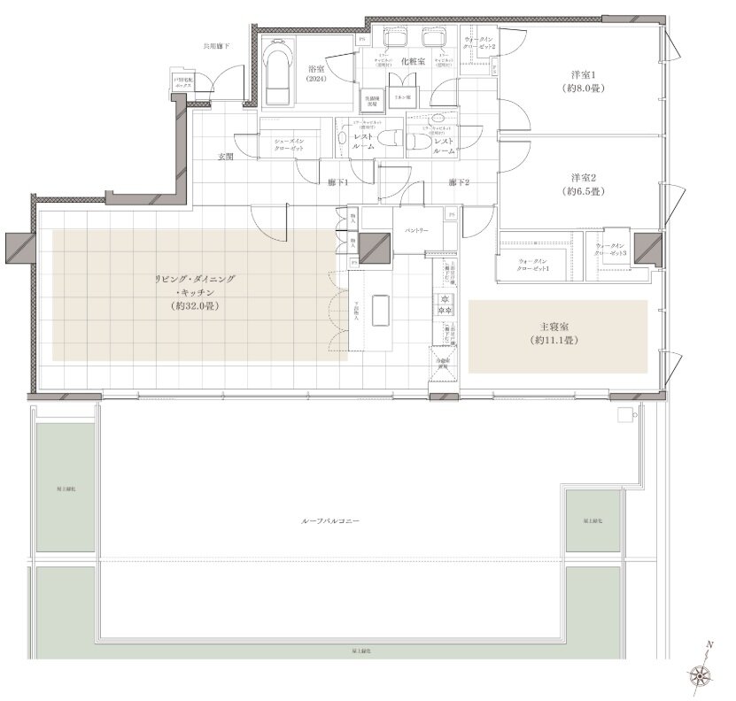
| タイプ |
L type |
間取り |
3LDK+3WIC+SIC+P |
|---|---|---|---|
| 専有面積 |
138.6 ㎡ |
バルコニー面積 |
82.82 ㎡ |
| 所在地 |
東京都目黒区柿の木坂2丁目300番1外(地名地番) |
||
| 交通 |
東急東横線「都立大学」駅 徒歩14分 |
||
| 備考 |
ルーフバルコニー面積/82.82㎡ |
||