

| タイプ |
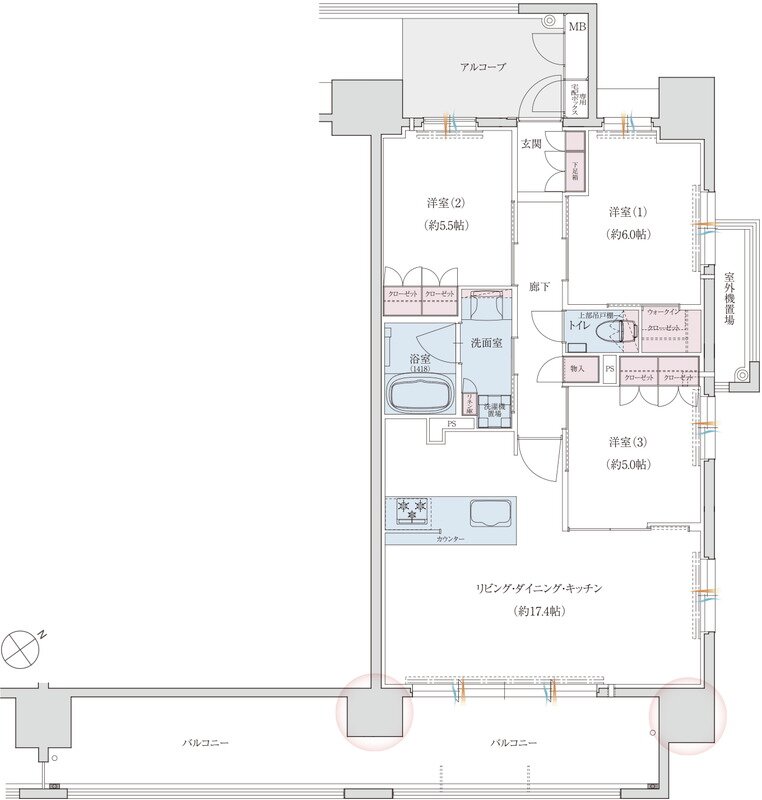
D1タイプ |
間取り |
3LDK+WIC |
|---|---|---|---|
| 専有面積 |
73.87 ㎡ |
バルコニー面積 |
24.43 ㎡ |
| 所在地 |
長崎県長崎市大橋町194番(地番) |
||
| 交通 |
長崎電軌本線「岩屋橋」駅 徒歩4分 |
||
| 備考 |
※専有面積に専有宅配ボックス面積 0.51㎡含む |
||