
タイプ |
Cタイプ |
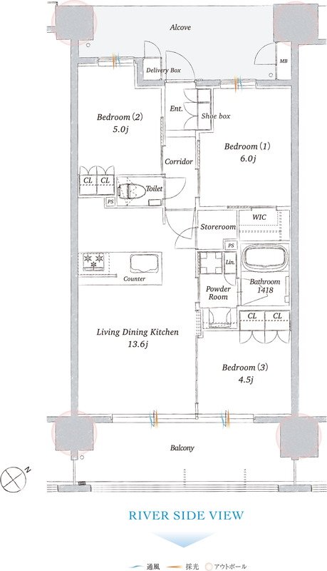
間取り |
3LDK+WIC |
---|---|---|---|
専有面積 |
64.06 ㎡ |
バルコニー面積 |
12.80 ㎡ |
所在地 |
長崎県長崎市大橋町194番(地番) |
||
交通 |
長崎電軌本線「岩屋橋」駅 徒歩4分 |
||
備考 |
※専有面積に専有宅配ボックス面積0.43㎡含む |