

| タイプ |
Fsg type |
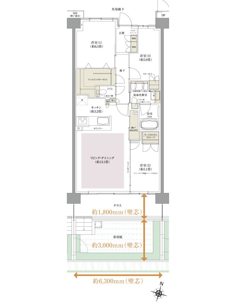
間取り |
3LDK+FIC+N |
|---|---|---|---|
| 専有面積 |
77.17 ㎡ |
バルコニー面積 |
- |
| 所在地 |
千葉県千葉市稲毛区弥生町7丁目2番25、2番27(地番) |
||
| 交通 |
JR総武線「西千葉」駅 徒歩3分 |
||
| 備考 |
テラス面積:11.34㎡ |
||