

| タイプ |
I1 type |
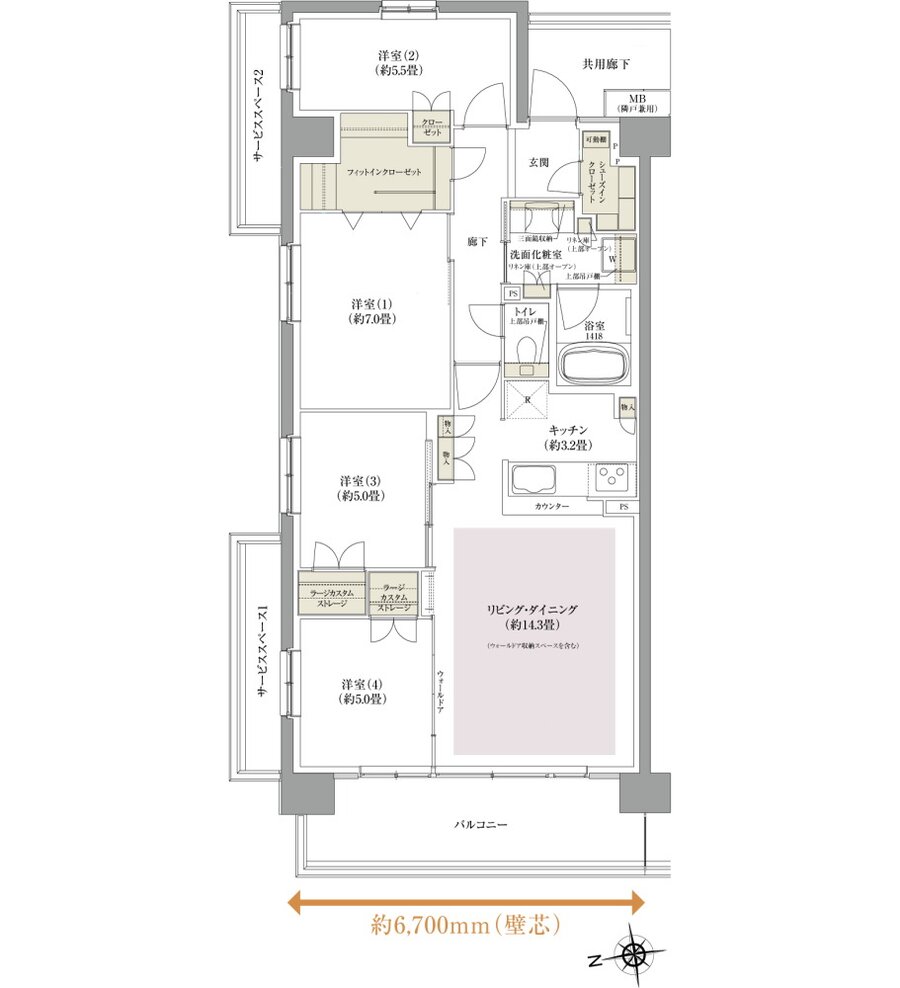
間取り |
4LDK+FIC+SIC |
|---|---|---|---|
| 専有面積 |
91.6 ㎡ |
バルコニー面積 |
11.61 ㎡ |
| 所在地 |
千葉県千葉市稲毛区弥生町7丁目2番25、2番27(地番) |
||
| 交通 |
JR総武線「西千葉」駅 徒歩3分 |
||
| 備考 |
サービススペース合計面積:8.62㎡ |
||