

| タイプ |
A type |
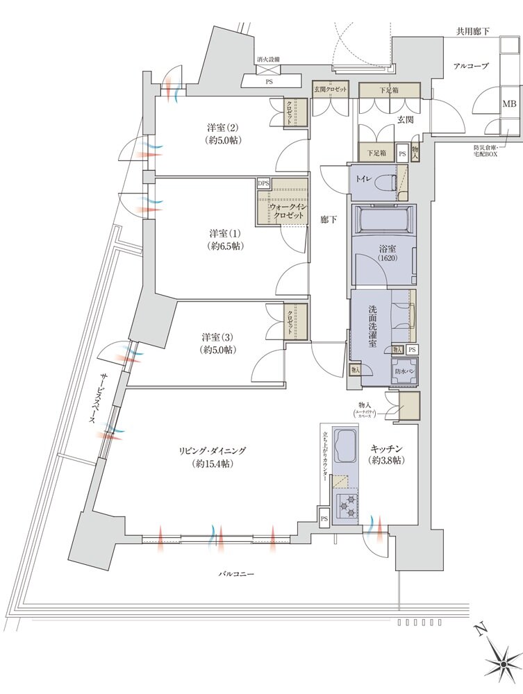
間取り |
3LDK +WIC |
|---|---|---|---|
| 専有面積 |
83.04 ㎡ |
バルコニー面積 |
19.19 ㎡ |
| 所在地 |
兵庫県神戸市中央区相生町1丁目3番12(地番) |
||
| 交通 |
JR東海道本線「神戸」駅 徒歩4分 |
||
| 備考 |
アルコーブ面積/4.58㎡ |
||