
タイプ |
A type |
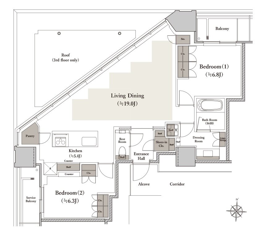
間取り |
2LDK+SIC |
---|---|---|---|
専有面積 |
85.21 ㎡ |
バルコニー面積 |
4.85 ㎡ |
所在地 |
東京都港区南麻布3丁目145番3(地番) |
||
交通 |
東京メトロ南北線「白金高輪」駅 徒歩9分 |
||
備考 |
サービスバルコニー面積:4.12㎡ |