
タイプ |
M type |
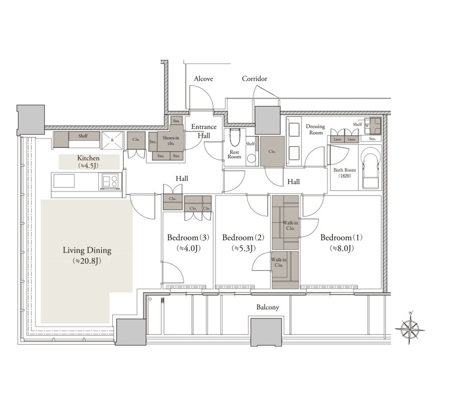
間取り |
3LDK+N+2WIC+SIC |
---|---|---|---|
専有面積 |
105.86 ㎡ |
バルコニー面積 |
17.06 ㎡ |
所在地 |
東京都港区南麻布3丁目145番3(地番) |
||
交通 |
東京メトロ南北線「白金高輪」駅 徒歩9分 |
||
備考 |
アルコーブ面積:3.18㎡ |