

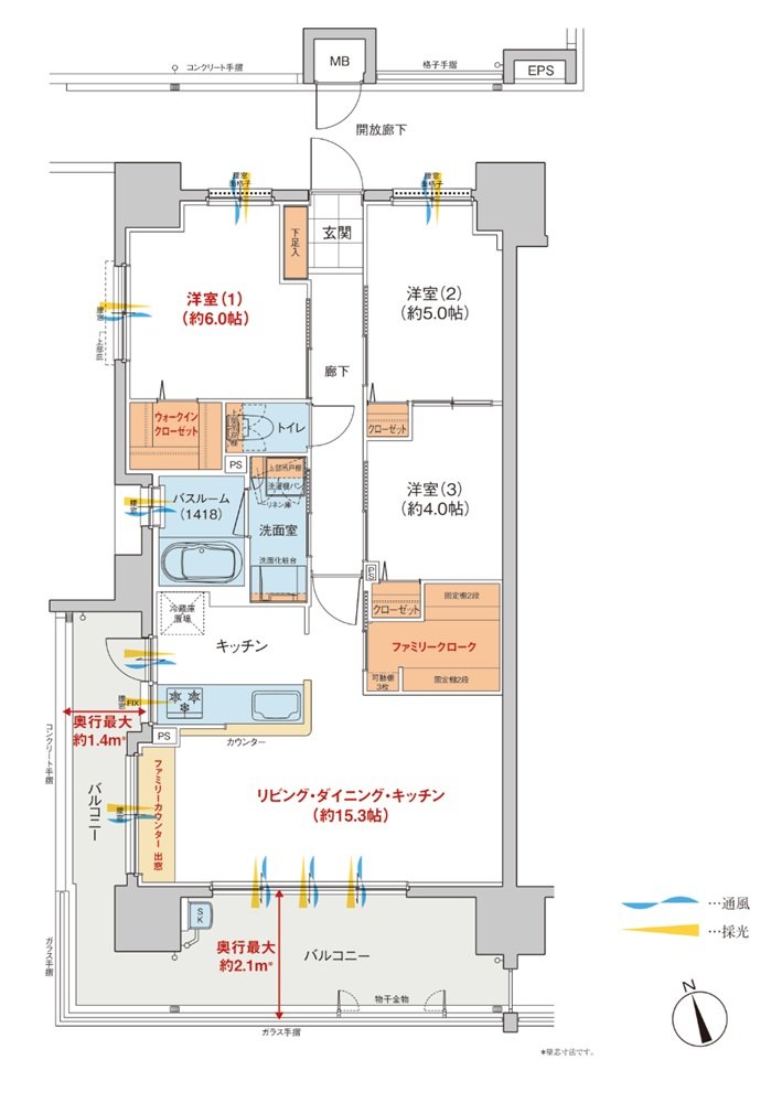
| タイプ |
K type |
間取り |
3LDK+WIC+FC |
|---|---|---|---|
| 専有面積 |
69.87 ㎡ |
バルコニー面積 |
21.98 ㎡ |
| 所在地 |
広島県広島市南区大州4丁目337-12、337-24(地番) |
||
| 交通 |
JR山陽本線「天神川」駅 徒歩3分 |
||
| 備考 |
MB面積:0.70㎡ |
||