
タイプ |
Jタイプ |
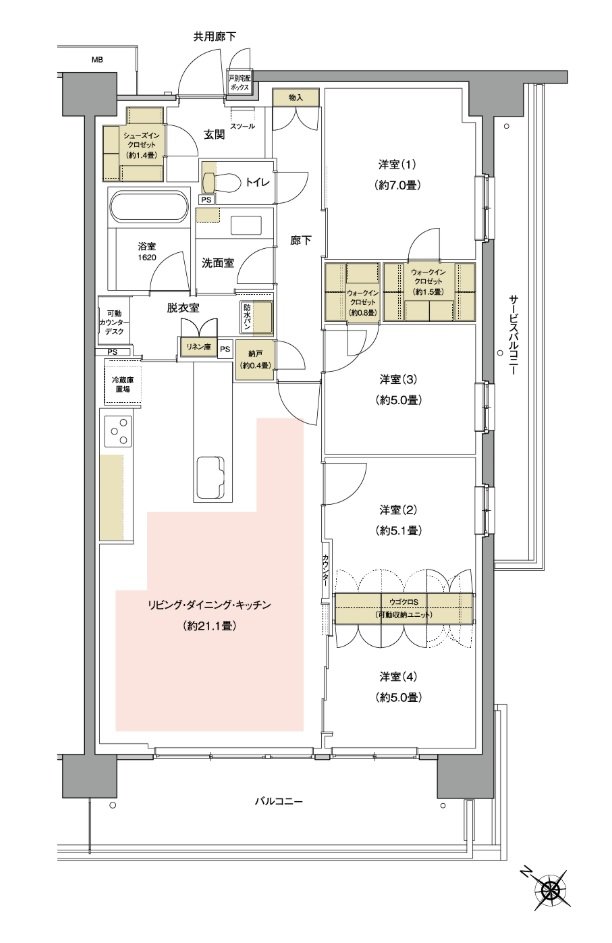
間取り |
4LDK+2WIC+SIC+N |
---|---|---|---|
専有面積 |
100.11 ㎡ |
バルコニー面積 |
13.96 ㎡ |
所在地 |
埼玉県川口市朝日6丁目303番8の一部(地番) |
||
交通 |
埼玉高速鉄道「南鳩ヶ谷」駅 徒歩15分 |
||
備考 |
サービスバルコニー面積/9.43㎡ |