

| タイプ |
H2pr TYPE |
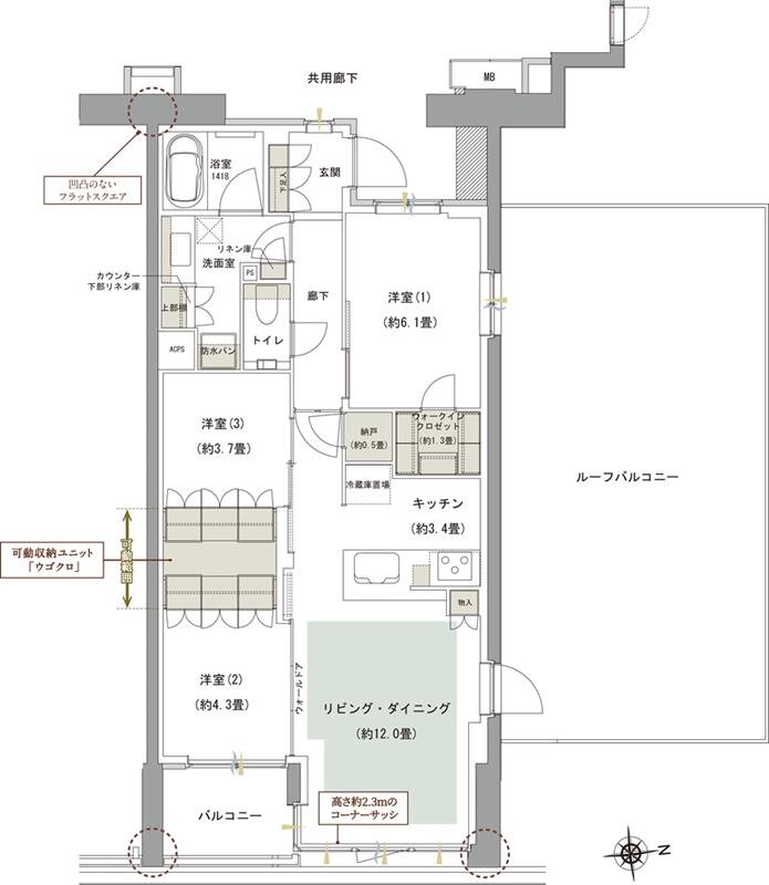
間取り |
3LDK+UGOCLO+WIC+N |
|---|---|---|---|
| 専有面積 |
72.27 ㎡ |
バルコニー面積 |
4.33 ㎡ |
| 価格 |
1億498万円 |
||
| 所在地 |
東京都練馬区上石神井4丁目610番28他(地番) |
||
| 交通 |
西武新宿線「上石神井」駅 徒歩5分 |
||
| 備考 |
ルーフバルコニー面積:47.13㎡ |
||