
タイプ |
Aタイプ メニュープラン |
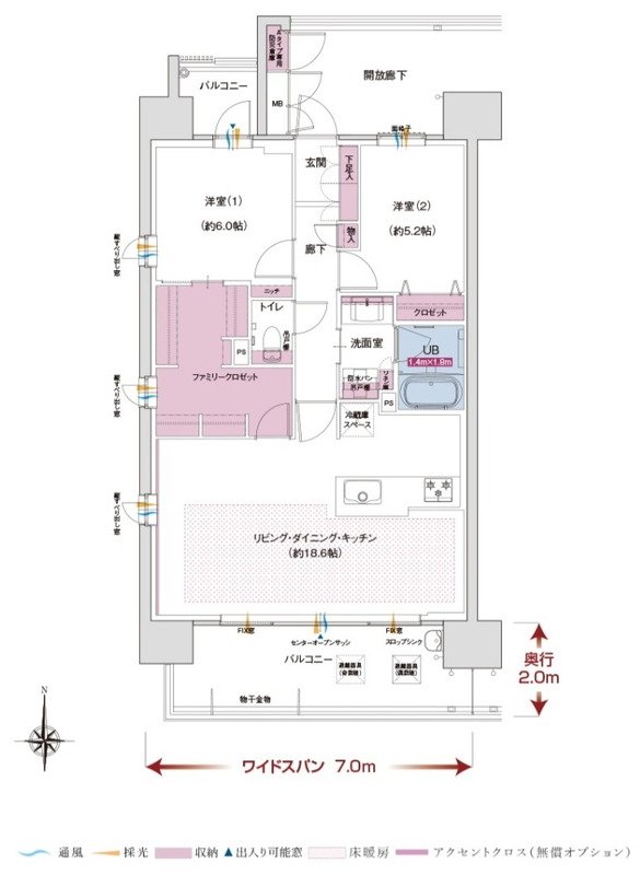
間取り |
2LDK+ファミリークロゼット |
---|---|---|---|
専有面積 |
73.34 ㎡ |
バルコニー面積 |
16.02 ㎡ |
所在地 |
京都府京田辺市三山木中央1丁目4-3、4-4、4-5、4-6(地番) |
||
交通 |
近鉄京都線「三山木」駅 徒歩2分 |
||
備考 |
※専有面積に防災倉庫0.54㎡含む |