

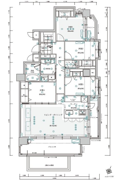
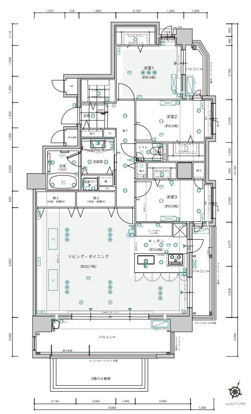
| タイプ |
C typeセレクト1 |
間取り |
3LDK |
|---|---|---|---|
| 専有面積 |
104.68 ㎡ |
バルコニー面積 |
23.16 ㎡ |
| 所在地 |
福岡県福岡市中央区草香江2丁目17区268番1(地番) |
||
| 交通 |
地下鉄七隈線「六本松」駅 徒歩10分(約800m) |
||
| 備考 |
防災倉庫面積:0.72㎡ |
||