

| タイプ |
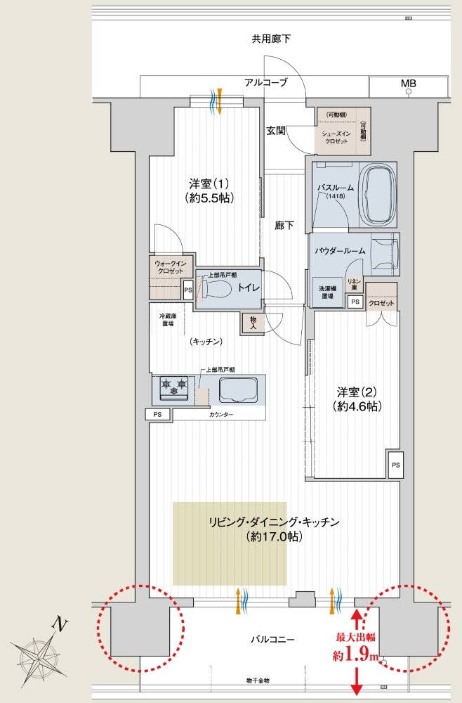
Cタイプ(MENU1) |
間取り |
2LDK+WIC+SIC |
|---|---|---|---|
| 専有面積 |
61.41 ㎡ |
バルコニー面積 |
10.83 ㎡ |
| 所在地 |
三重県四日市市浜田町204番(地番) |
||
| 交通 |
四日市あすなろう鉄道「あすなろう四日市」駅 徒歩5分 |
||
| 備考 |
アルコーブ面積:2.52㎡ |
||