
タイプ |
G type |
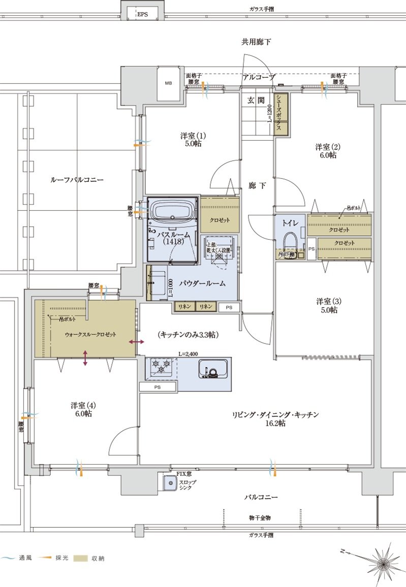
間取り |
4LDK+ウォークスルークロゼット |
---|---|---|---|
専有面積 |
88.17 ㎡ |
バルコニー面積 |
16.83 ㎡ |
所在地 |
福岡県福岡市早良区干隈3丁目295-1 |
||
交通 |
地下鉄七隈線「野芥」駅 徒歩10分 |
||
備考 |
アルコーブ面積:3.05㎡ |