

| タイプ |
C type |
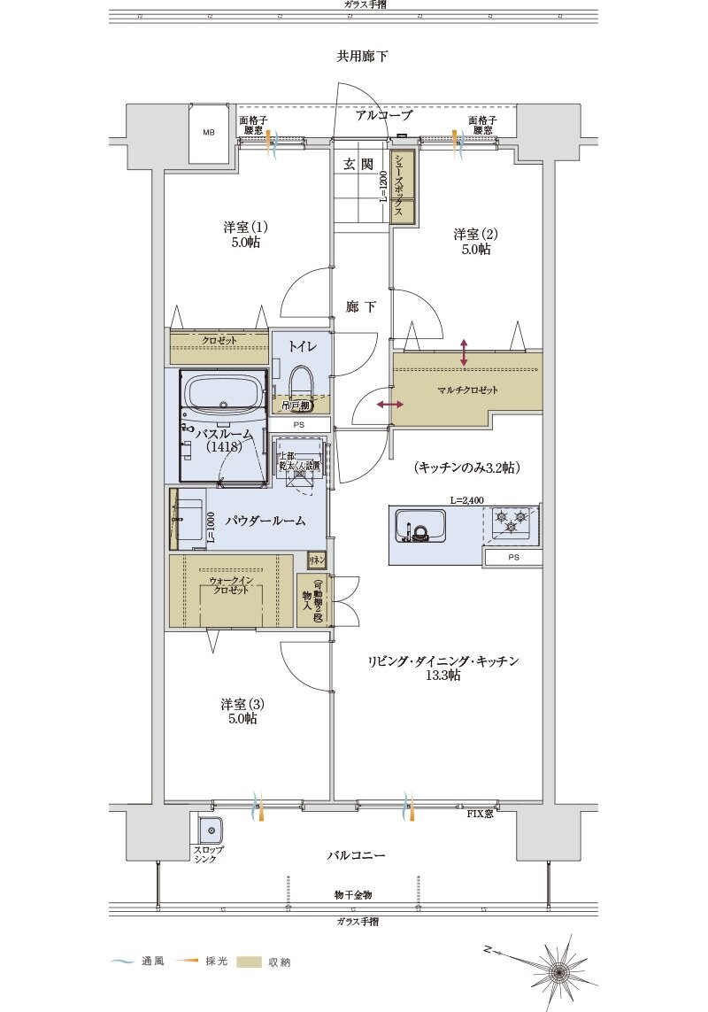
間取り |
3LDK+マルチクロゼット+ウォークインクロゼット |
|---|---|---|---|
| 専有面積 |
68.10 ㎡ |
バルコニー面積 |
10.79 ㎡ |
| 所在地 |
福岡県福岡市早良区干隈3丁目295-1 |
||
| 交通 |
地下鉄七隈線「野芥」駅 徒歩10分 |
||
| 備考 |
アルコーブ面積:2.83㎡ |
||