

| タイプ |
CJr TYPE |
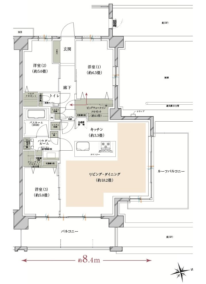
間取り |
3LDK+R+BW+W |
|---|---|---|---|
| 専有面積 |
83.41 ㎡ |
バルコニー面積 |
12.30 ㎡ |
| 所在地 |
東京都府中市美好町3丁目15番4他14筆 |
||
| 交通 |
京王線「分倍河原」駅 徒歩8分 |
||
| 備考 |
ルーフバルコニー面積:11.78㎡ |
||