
タイプ |
CKmr TYPE |
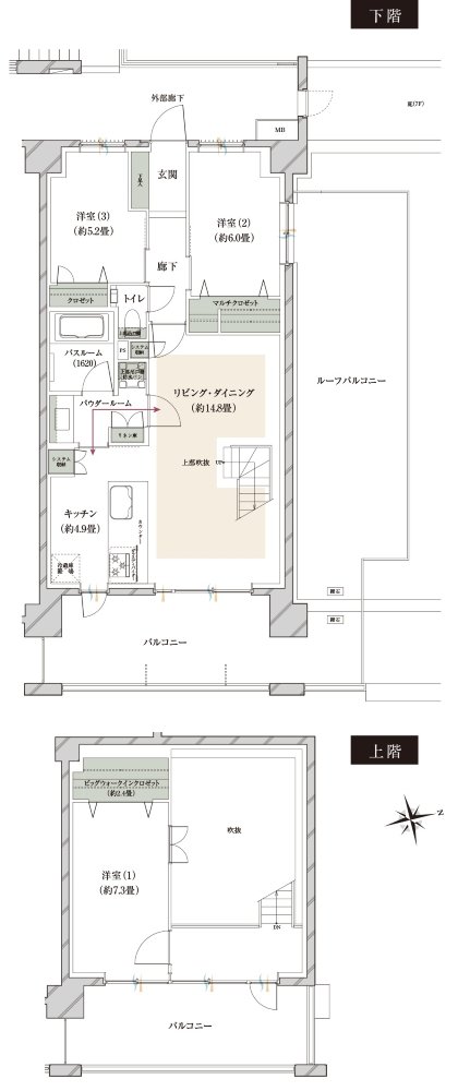
間取り |
3LDK+R+BW |
---|---|---|---|
専有面積 |
91.63 ㎡ |
バルコニー面積 |
31.86 ㎡ |
所在地 |
東京都府中市美好町3丁目15番4他14筆 |
||
交通 |
京王線「分倍河原」駅 徒歩8分 |
||
備考 |
ルーフバルコニー面積:29.82㎡ |