アットホーム 新築マンション

印刷する

このウィンドウを閉じる

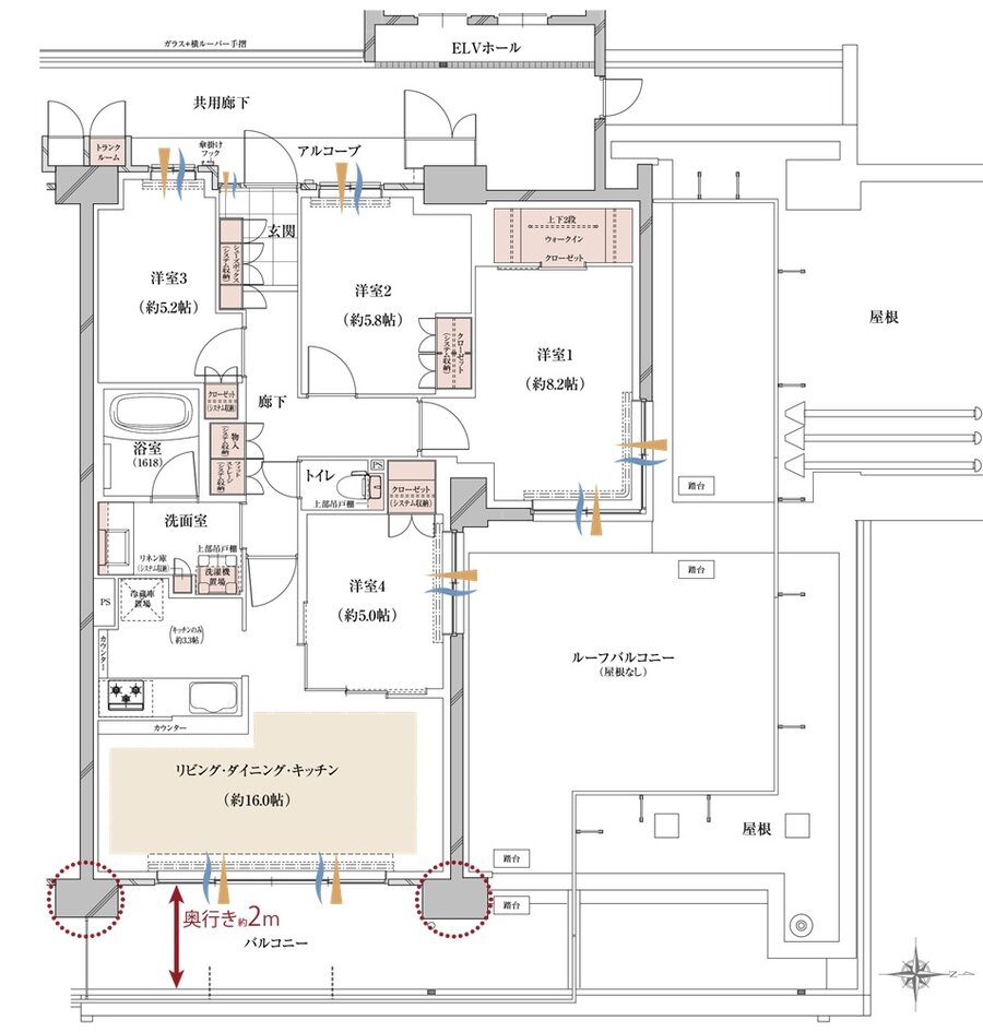
グランクレア ミリアシティ I-Sr TYPE

グランクレア ミリアシティ 間取り I-Sr TYPE
タイプ

I-Sr TYPE

間取り

4LDK+WIC+TR

専有面積

90.65 ㎡

バルコニー面積

16.40 ㎡

所在地

愛知県名古屋市北区織部町1-17,1-18
愛知県名古屋市北区御成通4丁目1-7(地番)

交通

名古屋市名城線「平安通」駅 徒歩8分(II工区エントランスより)
名古屋市名城線「平安通」駅 徒歩10分(I工区エントランスより)
名古屋市上飯田線「上飯田」駅 徒歩4分(I工区エントランスより) 他

備考

ルーフバルコニー面積:39.95㎡
アルコーブ面積:3.42㎡

  • アルコーブ
  • 可変式間仕切り
  • 広いリビング
  • ウォークインクローゼット
  • 広いバルコニー
  • 2面バルコニー
  • ルーフバルコニー
  • 東向き

印刷する

このウィンドウを閉じる

アットホーム Copyright(c) At Home Co.,Ltd. このサイトに掲載している情報の無断転載を禁止します。著作権はアットホーム(株)またはその情報提供者に帰属します。