
タイプ |
G TYPE |
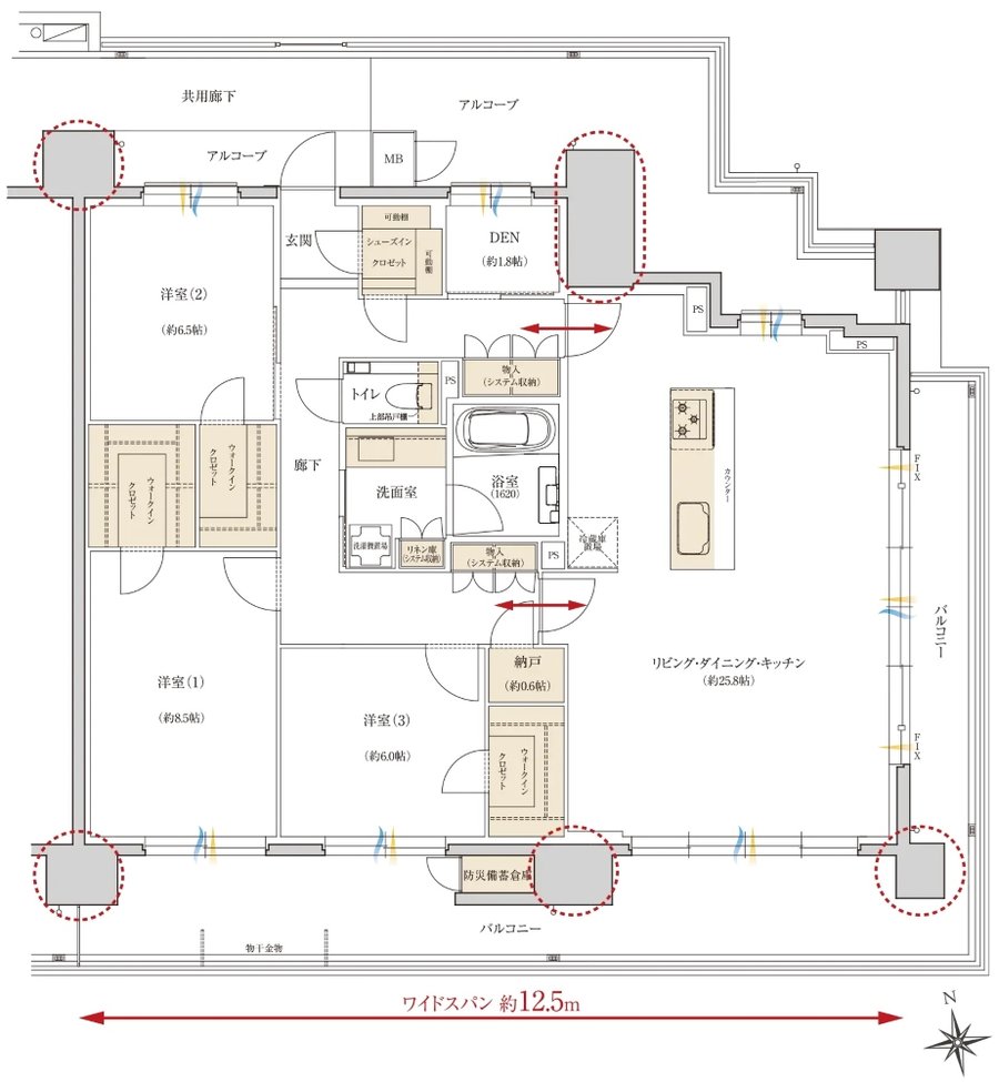
間取り |
3LDK+3WIC+SIC+N+DEN |
---|---|---|---|
専有面積 |
116.8 ㎡ |
バルコニー面積 |
32.4 ㎡ |
所在地 |
兵庫県西宮市津門稲荷町30番3(地番) |
||
交通 |
JR東海道本線「西宮」駅 徒歩6分 |
||
備考 |
アルコーブ面積:28.28㎡ |