
タイプ |
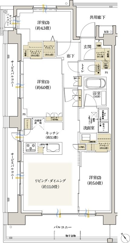
Gタイプ |
間取り |
3LDK+3WIC+SIC |
---|---|---|---|
専有面積 |
69.84 ㎡ |
バルコニー面積 |
10.42 ㎡ |
所在地 |
千葉県浦安市北栄1丁目775番2(地番) |
||
交通 |
東京メトロ東西線「浦安」駅 徒歩6分(東口より) |
||
備考 |
サービスバルコニー面積:11.37㎡ |