
タイプ |
A type |
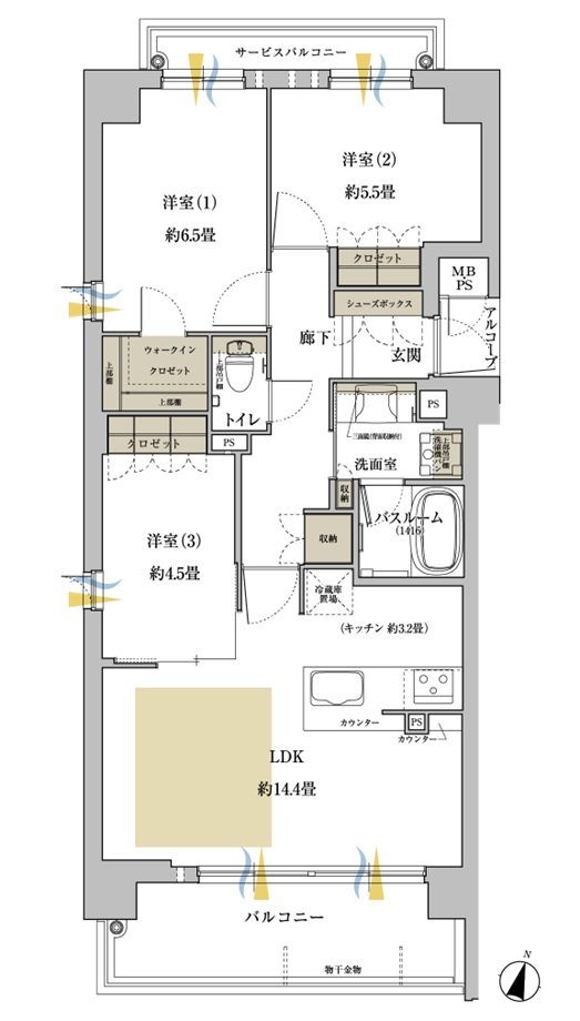
間取り |
3LDK |
---|---|---|---|
専有面積 |
70.06 ㎡ |
バルコニー面積 |
9.57 ㎡ |
所在地 |
兵庫県神戸市中央区上筒井通5丁目327番(登記簿) |
||
交通 |
阪急神戸線「王子公園」駅 徒歩14分 |
||
備考 |
サービスバルコニー面積:3.56㎡ |