

| タイプ |
II-Fタイプ(弐番館 第2期1次) |
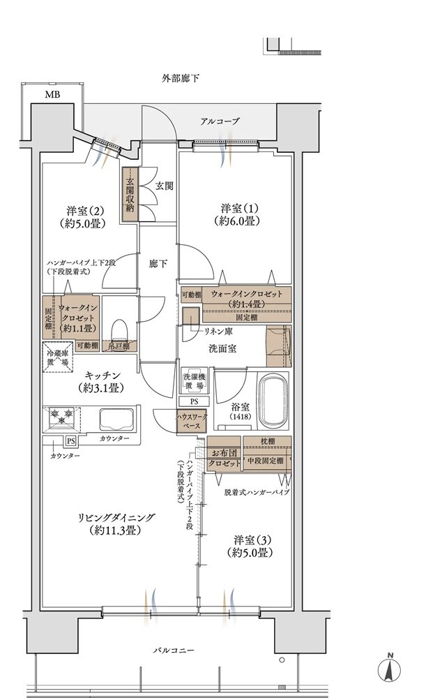
間取り |
3LDK+2WIC+FC |
|---|---|---|---|
| 専有面積 |
70.87 ㎡ |
バルコニー面積 |
11.90 ㎡ |
| 所在地 |
徳島県徳島市新町橋1丁目37番(地番)(エンブレム徳島壱番館) |
||
| 交通 |
JR高徳線「徳島」駅 徒歩7分 |
||
| 備考 |
アルコーブ面積:4.60㎡ |
||