

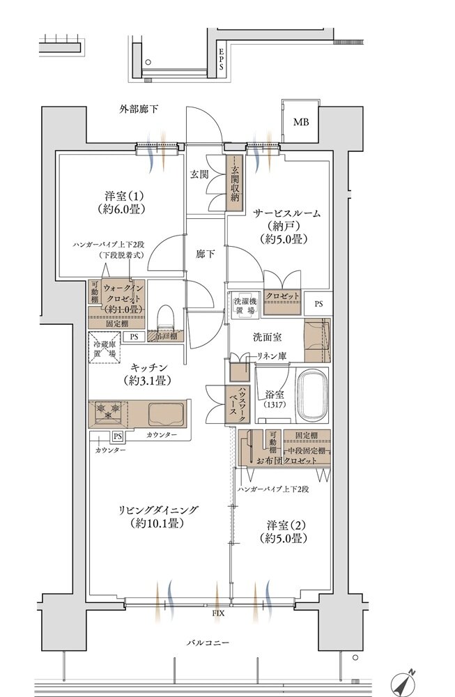
| タイプ |
I-Jタイプ(壱番館 第2期2次) |
間取り |
2LDK+S+WIC+FC |
|---|---|---|---|
| 専有面積 |
66.77 ㎡ |
バルコニー面積 |
12.1 ㎡ |
| 価格 |
3998万円 |
||
| 所在地 |
徳島県徳島市新町橋1丁目37番(地番)(エンブレム徳島壱番館) |
||
| 交通 |
JR高徳線「徳島」駅 徒歩7分 |
||