

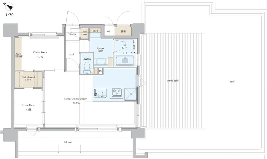
| タイプ |
C'' type |
間取り |
2LDK+WTC |
|---|---|---|---|
| 専有面積 |
50.43 ㎡ |
バルコニー面積 |
11.54 ㎡ |
| 所在地 |
福岡県福岡市博多区吉塚7丁目6-1外5筆(地番) |
||
| 交通 |
JR鹿児島本線「吉塚」駅 徒歩11分(約850m) |
||
| 備考 |
ルーフバルコニー面積:24.10㎡ |
||