

| タイプ |
F TYPE |
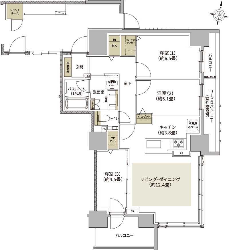
間取り |
3LDK+WIC |
|---|---|---|---|
| 専有面積 |
76.84 ㎡ |
バルコニー面積 |
8.58 ㎡ |
| 所在地 |
北海道札幌市東区北九条東2丁目40番54(地番) |
||
| 交通 |
札幌市東豊線「さっぽろ」駅 徒歩8分 |
||
| 備考 |
※専有面積に、トランクルーム面積1.00㎡含む |
||