

| タイプ |
I type |
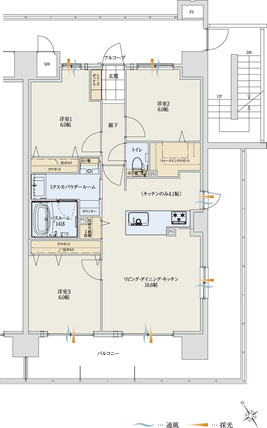
間取り |
3LDK+ミタスモパウダールーム+ウオークインクロゼット |
|---|---|---|---|
| 専有面積 |
77.11 ㎡ |
バルコニー面積 |
27.06 ㎡ |
| 所在地 |
滋賀県東近江市林町字長田56番29・字大原田73番19・字賀久堂110番5 |
||
| 交通 |
JR東海道本線「能登川」駅 徒歩4分 |
||
| 備考 |
アルコーブ面積/2.95㎡ |
||