
タイプ |
E-A type |
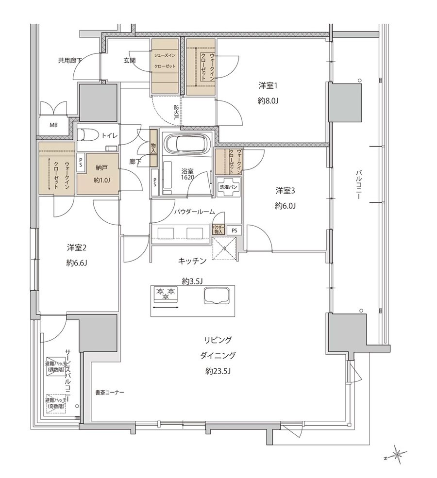
間取り |
3LDK+3WIC+SIC+SR |
---|---|---|---|
専有面積 |
110.34 ㎡ |
バルコニー面積 |
21.13 ㎡ |
所在地 |
熊本県熊本市中央区上通町11番4他(地番) |
||
交通 |
熊本市電健軍線「通町筋」駅 徒歩6分 |
||
備考 |
※Executive Floor [10~13F] |