

| タイプ |
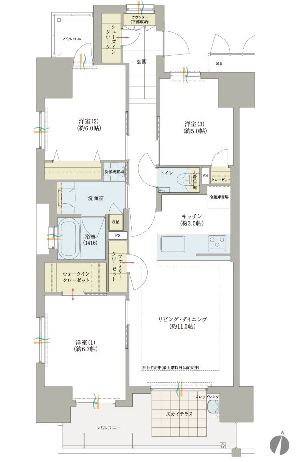
75-A TYPE |
間取り |
3LDK+WIC+FC+SIC |
|---|---|---|---|
| 専有面積 |
75.02 ㎡ |
バルコニー面積 |
12.95 ㎡ |
| 所在地 |
高知県高知市本町1丁目108番1 |
||
| 交通 |
とさでん交通伊野線「堀詰」駅 徒歩2分 |
||
| 備考 |
※バルコニー面積にスカイテラス面積含む |
||