

| タイプ |
E type(先着順販売住戸) |
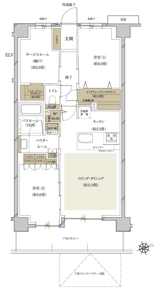
間取り |
2LDK+S(納戸)+BW+N |
|---|---|---|---|
| 専有面積 |
70.52 ㎡ |
バルコニー面積 |
- |
| 所在地 |
神奈川県横浜市港北区日吉3丁目1052番6(地番) |
||
| 交通 |
東急東横線「日吉」駅 徒歩18分 |
||
| 備考 |
バルコニー面積/10.70㎡[2階]・11.32㎡[3〜5階] |
||