アットホーム 新築マンション

印刷する

このウィンドウを閉じる

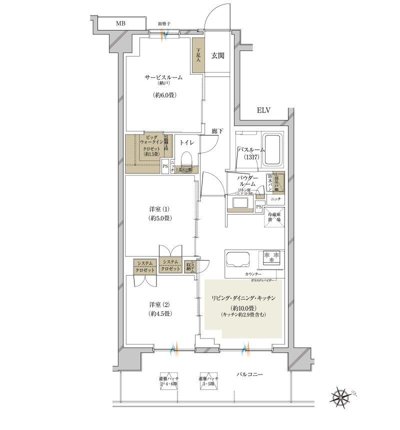
ヴェレーナ日吉 D type(先着順販売住戸)

ヴェレーナ日吉 間取り D type(先着順販売住戸)
タイプ

D type(先着順販売住戸)

間取り

2LDK+S(納戸)+BW

専有面積

61.12 ㎡

バルコニー面積

-

所在地

神奈川県横浜市港北区日吉3丁目1052番6(地番)

交通

東急東横線「日吉」駅 徒歩18分
東急目黒線「日吉」駅 徒歩18分
東急新横浜線「日吉」駅 徒歩18分 他

備考

バルコニー面積:11.40㎡[2階]・12.00㎡[3〜6階]

  • 可変式間仕切り
  • ウォークインクローゼット
  • 東向き

印刷する

このウィンドウを閉じる

アットホーム Copyright(c) At Home Co.,Ltd. このサイトに掲載している情報の無断転載を禁止します。著作権はアットホーム(株)またはその情報提供者に帰属します。