
タイプ |
Mr type |
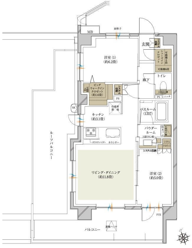
間取り |
2LDK+R+BW+SC |
---|---|---|---|
専有面積 |
60.51 ㎡ |
バルコニー面積 |
13.57 ㎡ |
所在地 |
神奈川県横浜市港北区日吉3丁目1052番6(地番) |
||
交通 |
東急東横線「日吉」駅 徒歩18分 |
||
備考 |
ルーフバルコニー面積:22.28㎡ |