

| タイプ |
C2 type |
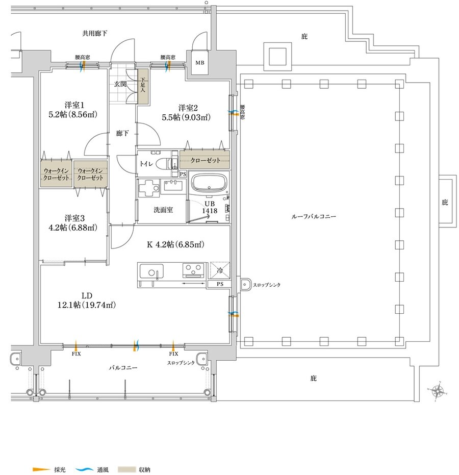
間取り |
3LDK(6階) |
|---|---|---|---|
| 専有面積 |
69.32 ㎡ |
バルコニー面積 |
11.34 ㎡ |
| 所在地 |
大分県大分市南太平寺2丁目101-3 |
||
| 交通 |
JR久大本線「古国府」駅 (南口ロータリー)車で7分(約2,500m) |
||
| 備考 |
ルーフバルコニー面積54.56㎡ |
||