

| タイプ |
B1 type |
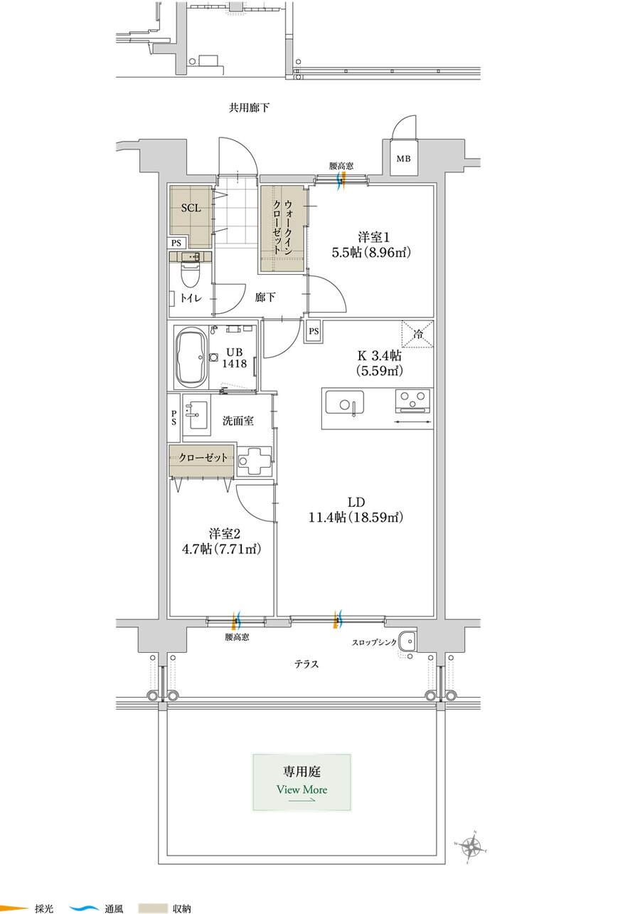
間取り |
2LDK(1階) |
|---|---|---|---|
| 専有面積 |
58.53 ㎡ |
バルコニー面積 |
- |
| 所在地 |
大分県大分市南太平寺2丁目101-3 |
||
| 交通 |
JR久大本線「古国府」駅 (南口ロータリー)車で7分(約2,500m) |
||
| 備考 |
専用庭面積:20.13㎡ |
||